Dit perceel, te koop in Sa Fon Seca , Palmanyola by Bunyola, heeft een uitstekende oriëntatie met adembenemend uitzicht op de baai van Palma. Het is gelegen op de top van de Sa Font Seca berg, op slechts 15 minuten rijden van Palma, met gemakkelijke toegang en in de nabijheid van de stad Bunyola, de universiteit en Son Termens Golf.
Het perceel van ongeveer 1.387 m2 is strategisch gelegen in deze woonwijk, op het hoogste punt in de omgeving en aan het einde van een doodlopende weg met een minimale verkeersstroom.
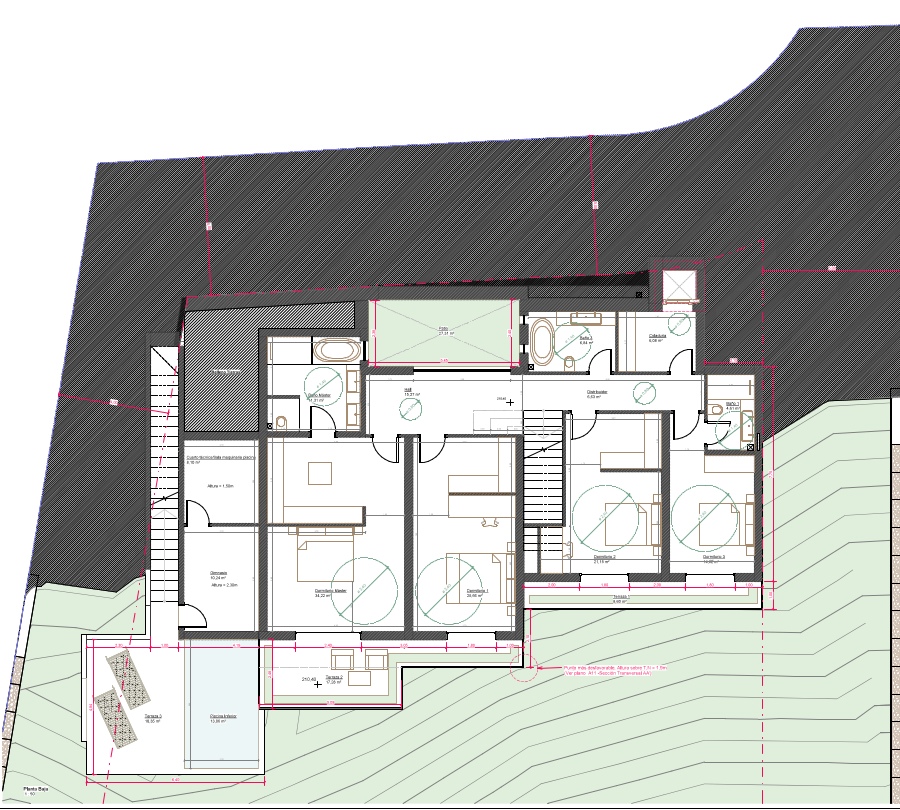
Dit perceel wordt geleverd met een uitstekend goedgekeurd project voor een villa van 369 m2, verdeeld over drie niveaus.
De ingang op straatniveau biedt directe toegang voor voertuigen tot het pand, naast een lift die moeiteloos toegang biedt tot elk van de verdiepingen.
Het middelste niveau, dat zich beneden bevindt, is bestemd voor de primaire woonruimten. Dit omvat een ruime keuken, een eetruimte, een gastentoilet en een woonkamer. Bovendien biedt dit niveau directe toegang tot de tuin en het zwembad.
De benedenverdieping is ontworpen met het oog op sereniteit en bevat vier tweepersoonsslaapkamers, elk met een eigen badkamer. De master suite heeft een kleedkamer en een terras, en alle kamers hebben een prachtig uitzicht op de bergen en de zee.
Neem contact met ons op voor meer informatie over dit spannende perceel met villaproject en veel potentieel.
In het noordwesten van het eiland vinden we de pittoreske gemeente Bunyola – gelegen in het hart van het Tramuntana-gebergte. De idyllische locatie, met zijn natuurlijke en culturele schatten, wordt begrensd door de Serra de Tramontana en biedt privacy en rust. Een van de beroemdste attracties van Mallorca, Jardins of d’Alfàbia, ligt in de omgeving. Palma, de hoofdstad van het eiland, ligt op slechts 20 km afstand.