Fantastische finca te koop aan de rand van Moscari, Mallorca

Moscari

Key Details

Status
Te koop
Type
Landelijk huis
Built In
0 m²

Overview

Rustiek Finca-perceel met goedgekeurde bouwvergunning in Moscari, Selva
Dit uitzonderlijke rustieke perceel van ongeveer 21.000 m² ligt op een verhoogde positie in het hart van Mallorca en biedt een open, ononderbroken panoramisch uitzicht dat zich uitstrekt naar de noordelijke kustlijn, in de richting van Campanet en de iconische Puig de Santa Magdalena.
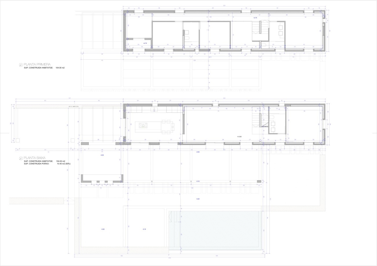
De woning wordt geleverd met een goedgekeurde bouwvergunning voor de renovatie en uitbreiding van een vrijstaande eengezinswoning met een totale bebouwde oppervlakte van 220 m², plus een zwembad van 40 m². De geplande indeling biedt een goed ontworpen en comfortabel woonconcept:
Begane grond: Ruime woon- en eetkamer met open keuken, 1 slaapkamer en 1 badkamer
Eerste verdieping: 3 slaapkamers, kantoor, 2 complete badkamers en wasruimte
Het zacht glooiende perceel is karaktervol en omgeven door het adembenemende landschap van de Serra de Tramuntana, dat op de Werelderfgoedlijst van UNESCO staat. De toegang is gemakkelijk via een geasfalteerde weg. Op dit moment omvat het pand een garage van 32 m², een agrarisch opslaggebouw van 27 m² en de bestaande structuur die moet worden opgeknapt en uitgebreid volgens het goedgekeurde project.
Locatie & Lifestyle : Moscari werd voor het eerst gedocumenteerd in 1230 en staat vandaag de dag bekend om zijn rustige sfeer, straten in middeleeuwse stijl en sterke gemeenschapszin.
Binnen enkele minuten bereik je de snelweg, het brede scala aan winkels en diensten in Inca, sportfaciliteiten en scholen. Palma ligt op minder dan 30 minuten afstand, terwijl de stranden van Puerto de Alcudia in slechts 23 minuten te bereiken zijn.
Wonen in de regio Raiguer betekent genieten van een centrale locatie zonder in te boeten aan rust en privacy. In Moscari gaat het leven in een rustiger tempo – een plek om te onthaasten, diep adem te halen en te genieten van het spectaculaire landschap.
Deze rustieke finca met goedgekeurde bouwvergunning is een unieke kans om je eigen privéparadijs te creëren in een van de meest authentieke en prachtige omgevingen van Mallorca.

Mogelijkheid om de huidige oppervlakte uit te breiden of het gebouw af te breken en opnieuw te beginnen.
Verdieping 1 = 104 m² (inclusief uitbreiding)
Verdieping 2 = 104 m² (inclusief uitbreiding)
Terras 1 = 63,35 m²
Terras 2 = 25,35 m²
Terras 3 = 16,65 m²
Veranda 1 = 19,30 m²
Zwembad = 40 m²
Solarium = 29.56 m²
Casita = 27,65 m²
Garage = 32 m²

Neem contact met ons op


    Similar Properties